ガレージKオーシャンズ
名古屋駅近し!希少1Kガレージハウスです。
名古屋駅近くの希少物件!
アイランドキッチン付きスキップフロアの洋室です。
アイランドキッチン付きスキップフロアの洋室です。
PHOTO
物件写真
ROOM
空き部屋情報
| No. | A号室(1K&ロフト) |
| 広さ |
洋室 11.45畳
|
| 駐車場 |
ガレージ幅3.6m×奥行き7.0m(最大部分)
シャッター幅2.35m×高さ2.23m |
| 家賃 |
家賃:57,000円
共益費:3,000円 駐車料:27,500円(税込) CATV:550円 事務手数料:330円 現在リフォーム中です。 入居可能日は3月下旬です。詳しくはお問合せ下さい。 |
| 入居状況 | 空室 |
| 受付 |
入居申込
|
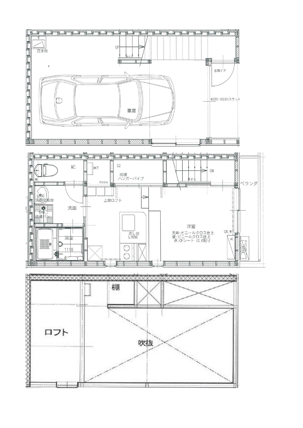
PLAN
間取り図
SPEC
物件詳細
物件概要
名古屋駅近くの希少物件!
アイランドキッチン付きスキップフロアの洋室です。
アイランドキッチン付きスキップフロアの洋室です。
交 通
地下鉄桜通線「中村区役所駅」車およそ4分
名古屋駅 太閤通口 車およそ9分
名古屋駅 太閤通口 車およそ9分
設 備
《ガレージ部設備など》
・電動シャッター(リモコン付き)
・給水設備
・人感センサー付き換気扇
・付け柱(棚等設置可)
・レール式人感センサー付き照明
・エアコン設置可
・電気自動車用コンセント
《居室部》
・アイランドキッチンL1650
・エアコン1基
・カラーモニター付インターホン
・給湯器(追い炊き機能付)
・浴室暖房換気乾燥機(電気)
・電動シャッター(リモコン付き)
・給水設備
・人感センサー付き換気扇
・付け柱(棚等設置可)
・レール式人感センサー付き照明
・エアコン設置可
・電気自動車用コンセント
《居室部》
・アイランドキッチンL1650
・エアコン1基
・カラーモニター付インターホン
・給湯器(追い炊き機能付)
・浴室暖房換気乾燥機(電気)
賃貸条件
3月下旬入居可です。
その他
MAP
周辺地図
愛知県名古屋市中村区二ツ橋町2ー21ー1