仮)GRAN GARAGE豊田若林
全室庭付き!全室シャッター前駐車スペースあり!
					・希少な2LDKスキップタイプが豊田市に新登場
・全室ガレージ内1台+シャッター前に1台駐車可能
・すべてのお部屋に専用庭付き
			・全室ガレージ内1台+シャッター前に1台駐車可能
・すべてのお部屋に専用庭付き
PHOTO
				物件写真
				 
																	 
																	ROOM
				空き部屋情報
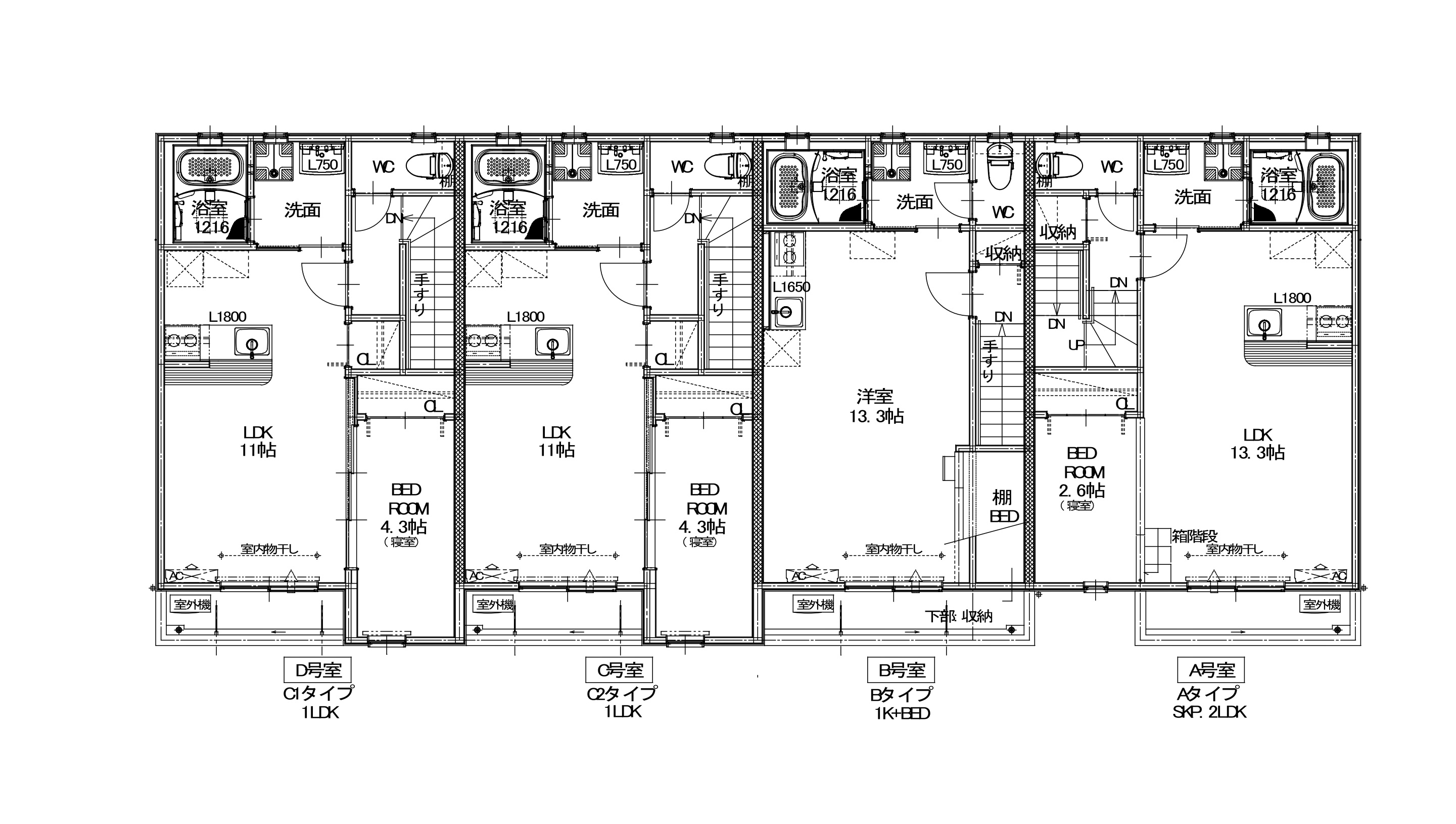
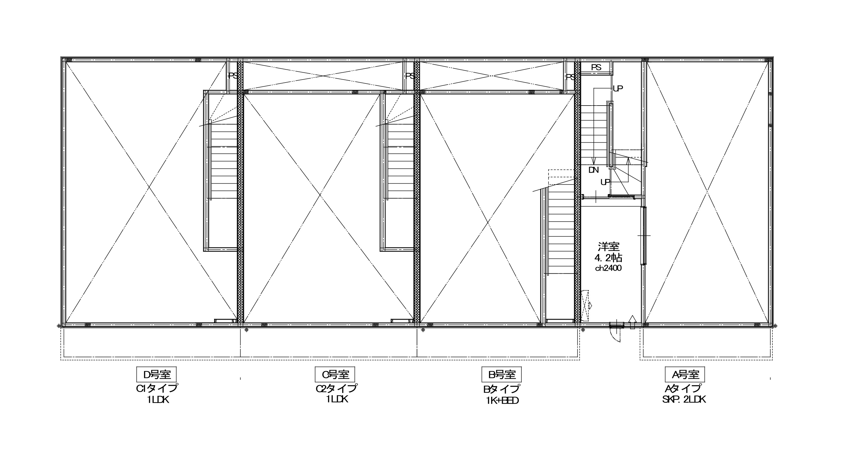
			| No. | A(2LDKスキップタイプ) | B(1Kロフトベッド付き) | C(1LDK) | D(1LDK) | 
| 広さ | 
								LDK 13.3帖 ベッドルーム 2.6帖 洋室 4.2帖 | 
								洋室 13.3帖 ロフトベッド1.1帖 | 
								LDK 11.0帖 洋室 4.3帖 | 
								LDK 11.0帖 洋室 4.3帖 | 
| 駐車場 | 
								ガレージ幅3.2m×奥行7.4m(最大部分) シャッター幅3.5m×高さ2.4m (庭側 手動シャッター幅2.9m×高さ2.4m) | 
								ガレージ幅4.45m×奥行6.49m(最大部分) シャッター幅2.85m×高さ2.3m (庭側 手動シャッター幅2.85m×高さ2.3m) | 
								ガレージ幅4.45m×奥行6.49m(最大部分) シャッター幅2.85m×高さ2.2m (庭側 手動シャッター幅2.9m×高さ2.2m) | 
								ガレージ幅4.9m×奥行7.4m(最大部分) シャッター幅3.4m×高さ2.2m (庭側 手動シャッター幅2.9m×高さ2.2m) | 
| 家賃 | 
								予定家賃 124,000~127,000円 共益費 4,000円 | 
								予定家賃 86,000~89,000円 共益費 4,000円 | 
								予定家賃 98,000~100,000円 共益費 4,000円 | 
								予定家賃 99,000~101,000円 共益費 4,000円 | 
| 入居状況 | 予約済 | 予約済 | 予約済 | 予約済 | 
| 受付 | キャンセル待ち | キャンセル待ち | キャンセル待ち | キャンセル待ち | 
PLAN
				間取り図
			SPEC
				物件詳細
			物件概要
					
						・希少な2LDKスキップタイプが豊田市に新登場
・全室ガレージ内1台+シャッター前に1台駐車可能
・すべてのお部屋に専用庭付き
				・全室ガレージ内1台+シャッター前に1台駐車可能
・すべてのお部屋に専用庭付き
交 通
					
						・伊勢湾岸自動車道 豊田南IC 車約8分
・名古屋鉄道三河線 若林駅 徒歩約20分
				・名古屋鉄道三河線 若林駅 徒歩約20分
設 備
					
						<ガレージ>
・リモコン式電動シャッター
・EVコンセント200V
・エアコン設置可
・壁面アレンジピラー
・センサー式換気扇
・給湯給水設備
・TVコンセント
・ガスファンヒーターコック
・宅配ボックス
・コードリール
<居室>
・エアコン1基(LDK)
・シャンプードレッサー
・室内物干し
・モニター付きインターホン
				・リモコン式電動シャッター
・EVコンセント200V
・エアコン設置可
・壁面アレンジピラー
・センサー式換気扇
・給湯給水設備
・TVコンセント
・ガスファンヒーターコック
・宅配ボックス
・コードリール
<居室>
・エアコン1基(LDK)
・シャンプードレッサー
・室内物干し
・モニター付きインターホン
賃貸条件
					
						各部屋の募集条件をご確認ください
					
				その他
					MAP
				周辺地図
			愛知県豊田市若林東町宮間
			
		 
							 
						 
							